異形辦公室怎么設計 因地制宜打造自然輕盈的森林主題異形辦公室
在大部分人眼里,優質的辦公空間至少包括兩個要素:一是方正、二是通透,相反,異形辦公室往往意味著裝修設計難、空間利用率低。其實對于裝修設計師來說卻不是這樣,異形辦公室怎么設計更依賴設計師的創意發揮,進而給與了設計師更大的發揮空間。本案我們來介紹一個上海普陀區的辦公區改造項目,針對異形辦公室怎么設計這個問題,設計師通過對不規則空間的重新整合,讓裝修效果超出業主想象。
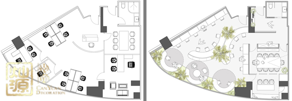
業主告訴設計師,他們的辦公室形狀與常規辦公室差別較大。而對于異形辦公室怎么設計,之前找的設計師給出的方案都達不到要求,一是允許容納員工的數量達不到要求,二是舒適度差。設計師被要求在通過方案解決上述兩個問題的基礎上,還要考慮異形辦公室怎么設計才能消除不規則空間對于辦公體驗的影響。設計師觀察異形辦公室平面圖之后,覺得這個戶型具備輕慢酒吧的潛質,于是決定設計一個森林主題的異形辦公室。
異形辦公室的設計當然要與眾不同。設計師摒棄傳統方正式流線,采用曲線布局工作區域。一下子將原本能容納10個座位的空間區域增加到容納20個座位。曲線設計附帶的天花、桌面和書架的一體化整合,讓員工動線與辦公室異形空間相協調。
接下來是針對異形辦公室的森林主題的植入。設計師對于異形辦公室怎么設計考慮得相當細致,他在空間死角、桌椅交匯處嵌入綠植,并以小石子點綴,為辦公室增添了音樂酒吧的愜意氣息。
會議室、辦公間等功能區盡可能采用了玻璃隔斷設計。設計師希望異形辦公室邊界不被人注意,讓每一個角落的員工都能沉浸在自然、輕盈的感受中。
在這樣一個幽靜的自然花園內工作,你的身心會不會都更加放松呢?果然,異形辦公室怎么設計都要仰仗設計師的創意發揮呢。燦源裝飾秉承六大人性化設計系統,創造超出行業標準的設計案例,打造客戶想要的異形辦公室設計。在燦源裝飾設計團隊眼中,每個異形辦公室設計都需要個性化定制。
本文標題:異形辦公室怎么設計 因地制宜打造自然輕盈的森林主題異形辦公室
本文地址:




